HXGN□-12 Series AC Metal Ring Network Switchgear Product Introduction
1. Product Brief Introduction
The HXGN□-12 series AC metal-enclosed ring network switchgear adopts FLN□-12 type SF6 load switch as the main switch, and uses air insulation as a whole. It is suitable for power automation, compact and reliable fully enclosed metal-enclosed switchgear. It has the advantages of compact structure, convenient operation, reliable operation, beautiful appearance, etc., and can meet the different application scenarios of users.
The main switch of HXGN□-12 series metal-enclosed ring network switchgear is FLN36-12 produced by our company or SFG type SF6 load switch produced by ABB company, and can also be equipped with VS1 type, VD4 type, ISM type vacuum circuit breaker or HD4/S type SF6 circuit breaker according to user needs. The load switch and circuit breaker can be operated manually or electrically, and the distribution automation can be realized after being equipped with CT, PT, FTU and communication equipment.
2. Model Meaning & Explanation
The coding of the product model contains the core structural characteristics and parameter information of the switchgear. The specific meaning of each part of the model is as follows:
SF6 load switch model interpretation:
FLN□-12/630:
- F - Load switch
- L - Sulfur hexafluoride
- N - Indoor type
- □ - Design serial number (36 or 48)
- 12 - Rated voltage (kV)
- 630 - Rated current (A)
Unit type switchgear model interpretation:
HXGN□-12/630-□:
- H - Ring network unit
- X - Fixed type
- G - Indoor type
- N - Type
- □ - Design serial number
- 12 - Rated voltage (kV)
- 630 - Rated current (A)
- □ - FLN36-12 load switch / FLN48-12 load switch / ABB SFG load switch
3. Normal Operating Conditions
- Altitude: Not exceeding 1000m;
- Ambient temperature: Maximum temperature: +40℃; Minimum temperature: -35℃;
- Ambient humidity: Monthly average value not exceeding 95%; Daily average value not exceeding 90%;
- Earthquake resistance: Grade 8;
- The surrounding air is free of explosive and corrosive gases, and there is no violent vibration or impact at the installation site.
4. Reference Standards
- GB/T 191 - Packaging, marking of transport packages (eqv ISO780:1997)
- GB 3984-2004 - High voltage alternating current fuse (eqv IEC62271-102:2002/MOD)
- GB 3906-1991 - 3-35kV AC metal-enclosed switchgear (eqv IEC60298:1990)
- GB 4208-1993 - Degrees of protection provided by enclosures (IP code) (eqv IEC60529:1989)
- GB/T 5582-1993 - External insulation level of high voltage electrical apparatus and its test method (eqv IEC60071-1:1993)
- GB 6388 - Rules for compilation of transport package marking
- GB 9969.1 - General rules for industrial product use instructions
- GB/T 10222-1999 - Common technical requirements for high voltage switchgear and controlgear standards (eqv IEC60694:1996)
- GB/T 11023-1989 - Test method for gas tightness of sulfur hexafluoride in high voltage switchgear
- GB/T 13384 - General technical requirements for packaging of mechanical products
- GB/T 14436 - General rules for industrial product guarantee document
- JB 16926-1997 - AC high voltage load switch fuse combination electrical appliance (eqv IEC62271-109:1990)
- JB/T 8754-1998 - Preparation conditions for type designation of high voltage switchgear (neq IEC 60298:1981)
- JB/T 4041-1999 - Indoor AC high voltage switchgear
5. Main Technical Parameters of Vacuum Circuit Breaker
| No. | Item | Unit | Load Switch Cabinet | Combined Electrical Cabinet | Circuit Breaker Cabinet |
|---|---|---|---|---|---|
| 01 | Rated voltage | kV | 12 | 12 | 12 |
| 02 | Rated frequency | Hz | 50/60 | 50/60 | 50/60 |
| 03 | Rated current | A | - | - | - |
| 04 | Main busbar | A | 630 | 630 | 630 |
| 05 | Branch main busbar | A | 630 | 125 (Determined by rated current of fuse) | 630 |
| 06 | Rated insulation level | kV | - | - | - |
| 07 | Power frequency withstand voltage (phase to phase & phase to ground) | kV | 42 | 42 | 42 |
| 08 | Power frequency withstand voltage (break) | kV | 48 | 48 | 48 |
| 09 | Power frequency withstand voltage (control and auxiliary circuit) | kV | 2 | 2 | 2 |
| 10 | Lightning impulse withstand voltage (phase to phase & phase to ground) | kV | 75 | 75 | 75 |
| 11 | Lightning impulse withstand voltage (port) | kV | 85 | 85 | 85 |
| 12 | Rated short-time withstand current (r.m.s) | KA | - | - | - |
| 13 | Main circuit | KA | 20/2S | - | 25/2S |
| 14 | Grounding circuit | KA | 20/2S | - | 25/2S |
| 15 | Rated peak withstand current (peak) | KA | 50 | 80 | 63 |
| 16 | Rated short-circuit making current (peak) | KA | 50 | - | - |
| 17 | Rated short-circuit breaking current | KA | - | 31.5 | 25 |
| 18 | Rated transfer current | A | - | 1700 | - |
| 19 | Rated active load breaking current | A | 630 | - | 630 |
| 20 | Rated closed-loop breaking current | A | 630 | - | 630 |
| 21 | Rated cable charging breaking current | A | 10 | - | 15 |
| 22 | Protection grade | - | IP3X | IP3X | IP3X |
| 23 | Mechanical life | times | - | - | - |
| 24 | Load switch | times | 5000 | 5000 | 10000 |
| 25 | Earthing switch | times | 2000 | 2000 | 2000 |
6. Structure and Basic Components of Circuit Breaker Cabinet
The HXGN□-12 circuit breaker cabinet is mainly used as the incoming line of the main power supply or standby power supply in the ring network system, and can also be used as the sectional switch of the dual power supply system. From top to bottom, the cabinet includes isolation chamber, load (isolation) switch chamber, circuit breaker chamber and cable chamber. According to user needs, it can be equipped with CT, PT, arrester, earthing switch and electrical protection device, with reliable "five-prevention" interlocking function.
The operating mechanism of VS1 vacuum circuit breaker adopts spring energy storage type, which can be used for AC or DC operation, with small volume and light weight. The domestic large-capacity vacuum circuit breaker and its integrated mechanism have stable performance and complete specifications, and can be used for closing and breaking of DC circuits, and can be installed in indoor vertical fixed type. The rated short-circuit breaking current of VS1 corresponding to 630A rated current is 25kA.
VD4 type vacuum circuit breaker and HD4/S type SF6 circuit breaker are designed by ABB company of Italy for ring network cabinet, with large opening capacity to meet various working conditions, including normal operation of equipment or branch switch, and short-circuit current breaking under special conditions. The three phases of A, B and C are arranged in a row, with small size, light weight and rated short-circuit breaking current of 25kA.
The German ISM permanent magnet vacuum circuit breaker is a high-tech product with the level of the world's advanced high voltage switch technology in the 21st century, which is specially designed for 10kV ring network cabinet. Its permanent magnet operating mechanism is an electronic control type with on-line detection unit and permanent magnet holding electromagnet.
Basic components include:
- (A) Upper unit: 3-position SF6 load switch * Operating mechanism with mechanical interlocking device * Locking device * Integrated pressure chamber * Electrical protection device * Chamber shell
- (B) Middle unit: VS1 type, VD4/S type, ISM type vacuum circuit breaker or HD4/S type SF6 circuit breaker
- (C) Lower unit: Earthing busbar * Cable chamber shell * Cable chamber base plate with cable support
Optional components:
- Integrated live display or portable live display interface * Auxiliary contacts at each position: 2NO+2NC * SF6 gas pressure monitor with alarm contact (SF6 load switch) * Current transformer * Voltage transformer * Arrester * Electric operating mechanism (SF6 load switch) * Lower earthing switch * Short-circuit and earth fault indicator * Cable indoor current transformer
7. Other Cabinet Types
Busbar connection cabinet: Used for the connection between the incoming cable and the busbar. The cabinet is equipped with a cable clip for fixing the cable, and can also be equipped with current transformer, arrester and other components. The cabinet width is 375mm or 500mm.
Busbar branch cabinet: Always used with busbar lifting cabinet, the basic cabinet width is 375mm, equipped with FLN36-12 or FLN48-12 or SFG 3-position SF6 load switch.
Busbar lifting cabinet: Used for the connection between the incoming cable and the busbar of the branch cabinet, with cabinet width of 500mm for easy wiring.
Metrology cabinet: Used for measuring voltage and current of the load switch, with special lead seals on the upper and lower doors for metrology.
Dual power supply incoming cabinet: The equipment is composed of two load switch cabinets with voltage and complete interlocking device. To realize the automatic switching function of the system, the system introduces live display interlocking mode in addition to the traditional PT voltage collection, and can also be set as the following two working modes according to the actual situation:
- One main and one standby for incoming line
- Standby for each other for incoming line
8. Auxiliary Equipment
The DJ-D short-circuit and earth fault indicator adopts logic circuit to realize overcurrent alarm and time-delay reset function, and can also be reset manually. Three short-circuit fault sensors are installed on three-phase power cables respectively, and one earth fault sensor is installed on three-core cable. The display unit is installed on the cabinet panel, and the sensor and display unit are connected by optical fiber or cable. The short-circuit and earth fault indicator can quickly find the fault location and eliminate the fault in time, shortening the power failure time.
The dehumidification controller is composed of temperature and humidity sensor, control unit and heating plate. When the ambient temperature (humidity) reaches the preset range, it controls the heating plate to start and stop, which can effectively prevent condensation by meeting the operation requirements of the switch cabinet on the ambient temperature and humidity of the cabinet.
Technical parameters of dehumidification controller:
- Humidity start: 85%RH±5%RH; Humidity stop: 75%RH±5%RH; Response speed: typical value <35s
- Output: 1 channel of switching value, rated resistive load AC220V/3A; Rated power of heating plate: 75-100W
- FTU working voltage: DC24V
The HXGN□-12 series AC metal-enclosed ring network switchgear can be equipped with DAT-1L type distribution automation terminal (including feeder automation terminal unit, FTU). Through the optical fiber communication system, it can connect with the main station system to realize remote control, telemetry and remote communication functions of the switch cabinet, and can also realize fault isolation, recovery and network reconfiguration of the distribution network.
9. DAT-1L Type Distribution Automation Terminal
The main functions of the typical DAT-1L distribution automation terminal are as follows:
- Information collection and processing function: including 4-way analog input, 8-way digital input, 8-way digital output and 1-way pulse input.
- Parameter setting function: with remote parameter setting and local setting function.
- Time synchronization function: receive the time synchronization command from the main station to keep time synchronization with the system.
- Equipment self-check function: regularly check the important parts inside the terminal, send alarm information to the main station when faults occur, and have power-on and software self-recovery functions.
- With local program running state indication.
- Fault detection function: can quickly detect faults and report fault information and nature to the main station or sub-station for fault isolation, including overcurrent detection, line overvoltage detection, load detection and three-phase overcurrent detection of lines.
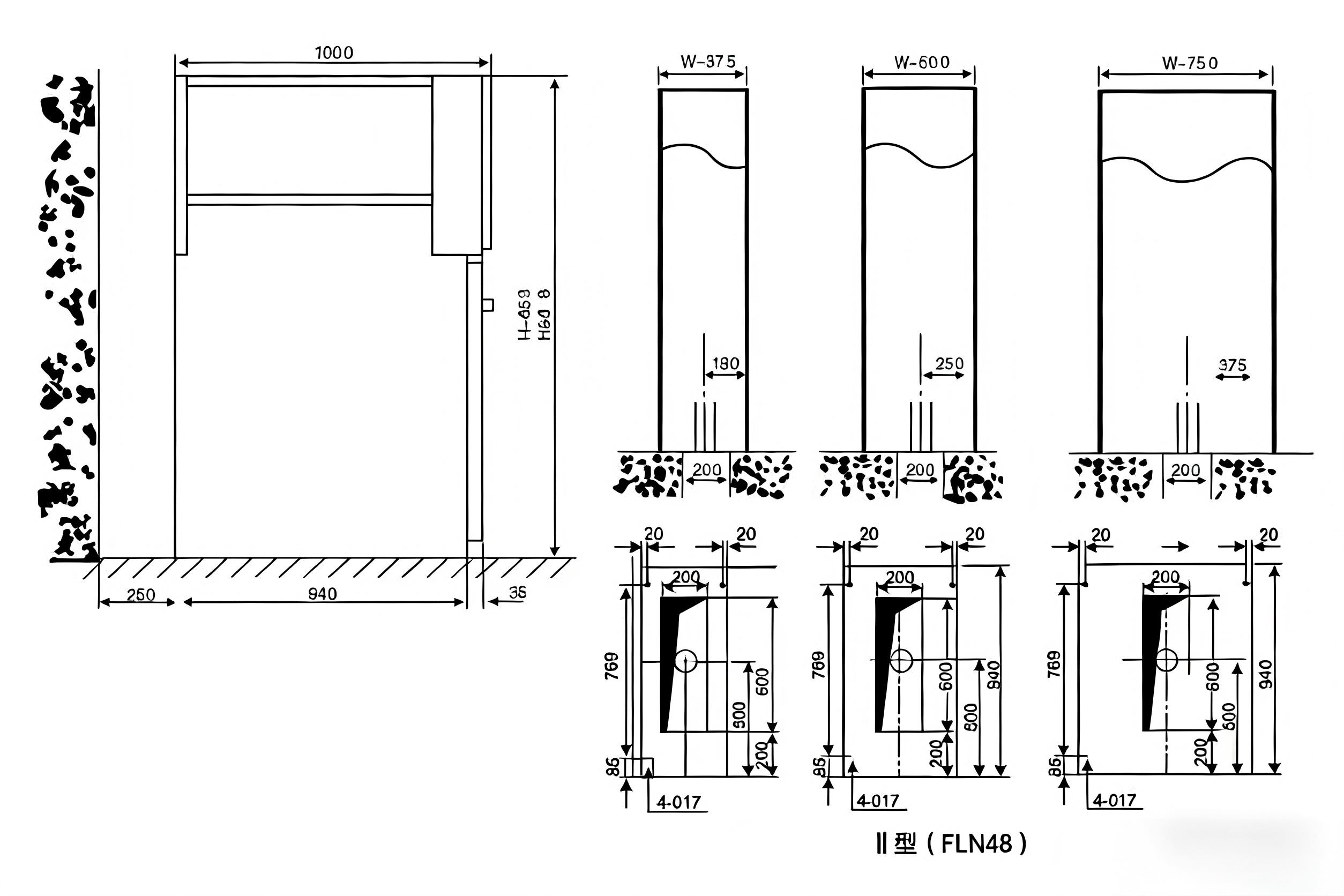
10. Overall Mounting Dimensions of Type HXGN□-12II
Yongce Group Co., Ltd.
