Complete Product Introduction
1. Product Brief Introduction
The VS1-24 indoor high-voltage vacuum circuit breaker is a three-phase AC 50Hz indoor switchgear with a rated voltage of 24kV. It is used as indoor switching equipment in power systems for protection and control of electrical equipment and power devices in industrial and mining enterprises. It is suitable for places requiring frequent operation at rated working current or breaking short-circuit current for many times. The circuit breaker adopts an integrated design of operating mechanism and breaker body, which can be used as a fixed installation unit, or equipped with a special propulsion mechanism to form a handcart unit.
2. Model Meaning & Explanation
The coding of the product model contains the core structural characteristics and parameter information of the vacuum circuit breaker. The specific meaning of each part of the model is as follows:

VS1: Vacuum Circuit Breaker (Design Serial Number)
24: Rated Voltage (kV)
/□: Rated Current (A)
-□: Rated Short-Circuit Breaking Current (kA)
3. Normal Operating Environment
- Ambient air temperature: upper limit +40℃, lower limit -15℃;
- Altitude: ≤ 1000m (if at high altitude, the insulation level shall be increased accordingly);
- Earthquake intensity: not exceeding 8 degrees;
- Relative air humidity: daily average not more than 95%, monthly average not more than 90%;
- No fire, explosion hazard, serious pollution, chemical corrosion and severe vibration.
4. Product Characteristics
- Integrated design of operating mechanism and breaker body, available for fixed installation or handcart unit with special propulsion mechanism;
- Suitable for frequent operation and breaking short-circuit current for multiple times, strong environmental adaptability;
- High reliability and stable performance, meeting the protection and control requirements of 24kV power system;
- Compact structure, easy installation and maintenance, long mechanical and electrical service life.
5. Main Technical Parameters
| Serial No. | Item | Unit | Data | ||
|---|---|---|---|---|---|
| 01 | Rated Voltage | kV | 24 | ||
| 02 | Rated Short-Time Power Frequency Withstand Voltage (1min) | kV | 65/79 (Phase-to-phase, To ground/Break) | ||
| 03 | Rated Lightning Impulse Withstand Voltage (Peak) | kV | 125/145 (Phase-to-phase, To ground/Break) | ||
| 04 | Rated Frequency | Hz | 50 | ||
| 05 | Rated Current | A | 630 1250 | 630 1250 1600 2000 2500 3150 | 630 1250 1600 2000 2500 3150 |
| 06 | Rated Short-Circuit Breaking Current | kA | 20/25 | 31.5 | 40 |
| 07 | Rated Short-Time Withstand Voltage | kV | 20/25 | 35.5 | 40 |
| 08 | Rated Short-Circuit Duration Time | s | 4 | ||
| 09 | Rated Peak Withstand Current | kA | 50/63 | 80 | 100 |
| 10 | Rated Short-Circuit Making Current | kA | 50/63 | 80 | 100 |
| 11 | Secondary Circuit Withstand Voltage (1min) | V | 200 | ||
| 12 | Rated Breaking Current of Single/Back-to-back Capacitor Bank | A | 630/400/40kA (800/400) | ||
| 13 | Rated Making Inrush Current of Capacitor Bank | kA | 12.5 (Frequency < 1000Hz) | ||
| 14 | Mechanical Life | times | 20000 | ||
| 15 | Rated Current Breaking Times (Electrical Life) | times | 20000 | ||
| 16 | Rated Short-Circuit Breaking Times | times | 50(40kA ≤ 30) | ||
| 17 | Allowable Cumulative Wear Thickness of Moving/Static Contacts | mm | 3 | ||
| 18 | Energy Storage Time | s | ≤ 10 | ||
| 19 | Contact Opening Distance | mm | 16±1 | ||
| 20 | Overstroke | mm | 3.5±0.5 | ||
| 21 | Contact Closing Bounce Time | ms | ≤ 2(40kA ≤ 3) | ||
| 22 | Three-Phase Closing/Opening Asynchronism | ms | ≤ 2 | ||
| 23 | Average Opening Speed (Contact Separation - 8mm) | m/s | 1.5±0.2 | ||
| 24 | Average Closing Speed (8mm - Contact Closure) | m/s | 0.8±0.2 | ||
| 25 | Main Conductive Circuit Resistance | μΩ | ≤ 50(630A) ≤ 45(1250A) , ≤ 35(1600-2000A) ≤ 25(2500A and above) | ||
| 26 | Rated Operating Sequence | - | Open-0.3s-Close-180s-Close | ||
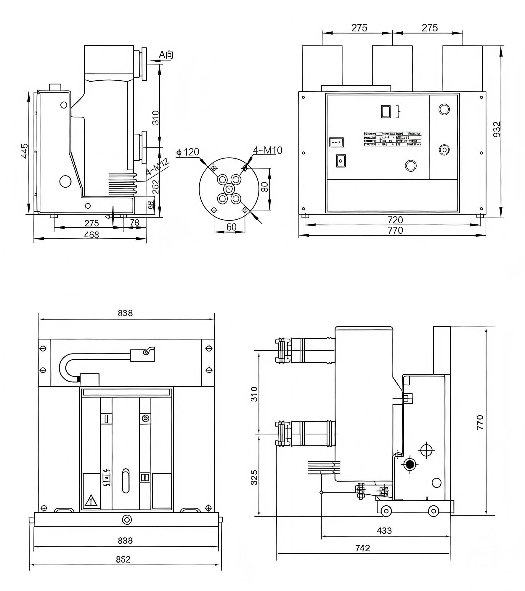
6. Outline & Installation Dimensions
The outline and installation dimensions of the product are shown in the figure below:
7. Ordering Notes
When placing an order for the VS1-24 indoor high-voltage vacuum circuit breaker, please provide the following information to ensure that the product meets the actual use requirements:
- Exact product model (including rated voltage, rated current, rated short-circuit breaking current);
- Installation type (fixed type/handcart type) and matching switchgear model;
- Special environmental requirements (such as altitude, temperature, earthquake intensity, etc.);
- Special technical requirements (if any, such as customized accessories, operating mechanism voltage, etc.).
Yongce Group Co., Ltd.
