KYN550-12 Switchgear Complete Product Introduction
1. Product Brief Introduction
The KYN550-12 indoor armored removable AC metal-enclosed switchgear (hereinafter referred to as KYN550-12 switchgear) is the smallest-sized switchgear of our company applied to 12kV three-phase AC 50Hz single-bus and single-bus sectionalized assembled electrical equipment. KYN550-12 is equipped with "five-prevention" interlocking functions to prevent misoperation of circuit breakers and vacuum circuit breaker trucks during closing, prevent incorrect entry into live compartments, and prevent closing the switch with live earthing switch, ensuring the safe operation of indoor medium-voltage withdrawable circuit breaker switchgear. It is a high-performance electrical distribution equipment.
KYN550-12 is designed with optimal dimension, saving a lot of distribution space for customers. It is mainly used in commercial and industrial buildings, real estate, data centers and other industrial power grids with miniaturization requirements.
2. Executive Standards
This switchgear complies with IEC62271-200, GB3906, DL/T404 and other standards. The protection grade of the outer shell of KYN550-12 switchgear is IP4X, and when the circuit breaker chamber door is open and the handcart is withdrawn, the protection grade is IP2X.
3. Operating Conditions
Normal Operating Conditions
- Ambient temperature: upper limit +40℃, lower limit -25℃;
- Altitude: the maximum altitude of the place where the equipment is installed shall not exceed 2000m;
- Humidity: daily average relative humidity not more than 95%, monthly average relative humidity not more than 90%;
- Seismic intensity: not exceeding 8 degrees;
- The surrounding air shall be free from obvious pollution by corrosive or flammable gases, water vapor, etc.;
- No severe vibration and frequent shaking. The rugged design under harsh conditions shall meet the requirements of Class 1.
Special Operating Conditions
- When used under conditions beyond the normal conditions specified in GB3906 and the technical conditions of this manual, it shall be negotiated with the user and the manufacturer.
4. Product Characteristics
- Green and Environmental Protection: The materials used in KYN550-12 are recyclable and pollution-free environmentally friendly materials.
- Safe and Reliable: Fully enclosed metal shell with easy-to-view isolation window to ensure the safety of operators during operation.
- Simple and Compact: One of the smallest-sized products in the same type of switchgear, thus achieving outstanding economic benefits in new construction and renovation projects of power stations.
- Intelligent: Equipped with various automatic operation and protection devices, as well as online monitoring devices to ensure the safe operation of equipment. KYN550-12 can operate safely in the power grid with automatic power distribution.
- Special Customization: Can be customized according to customers' special requirements.
5. Switchgear Technical Parameters
| Serial No. | Name | Unit | Technical Parameter |
|---|---|---|---|
| 1 | Rated Voltage | kV | 12 |
| 2 | Rated Frequency | Hz | 50 |
| 3 | Rated Lightning Impulse Withstand Voltage (1min) | kV | 42/48 (Break) |
| 4 | Rated Lightning Impulse Withstand Voltage (Peak) | kV | 75/85 (Break) |
| 5 | Rated Current | A | ≤ 1250 |
| 6 | Rated Short-time Withstand Current (4s) | kA | ≤ 31.5 |
| 7 | Rated Peak Withstand Current (Peak) | kA | ≤ 80 |
| 8 | Main Circuit Resistance | μΩ | 21 ≤ 100×CT⁻⁷ |
| 9 | Protection Grade - Outer Shell | kV | IP4X |
| 9 | Protection Grade - Circuit Breaker Chamber Open | kV | IP2X |
Notes: 1) The rated short-time withstand current and rated peak withstand current of the current transformer are related to its ratio, which shall be confirmed in detail when placing an order.
2) Including the DC resistance of the current transformer.
| Serial No. | Name | Unit | Technical Parameter |
|---|---|---|---|
| 01 | Rated Voltage | kV | 12 |
| 02 | Rated Insulation Level - Rated Power Frequency Withstand Voltage (1min) | kV | 42 |
| 02 | Rated Insulation Level - Rated Lightning Impulse Withstand Voltage (Peak) | kV | 75 |
| 03 | Rated Frequency | Hz | 50 |
| 04 | Rated Current | A | 1250 |
| 05 | Rated Short-circuit Breaking Current | kA | ≤ 31.5 |
| 06 | Rated Short-time Withstand Current | kA | ≤ 31.5 |
| 07 | Rated Peak Short-circuit Withstand Current (Peak) | kA | ≤ 80 |
| 08 | Rated Short-circuit Making Current (Peak) | kA | ≤ 80 |
| 09 | Rated Phase-to-Earth Short-circuit Breaking Current | kA | 27.4 |
| 10 | Rated Short-circuit Current Duration | s | 4 |
| 11 | Number of Rated Short-circuit Current Breaking Times | times | 30 |
| 12 | Rated Operating Sequence | Operating Cycle | Close-0.3s-Open-180s-Close |
| Close-0.3s-Open-15s-Close | |||
| Open-180s-Close-180s-Open | |||
| 13 | Mechanical Life | times | 20000 |
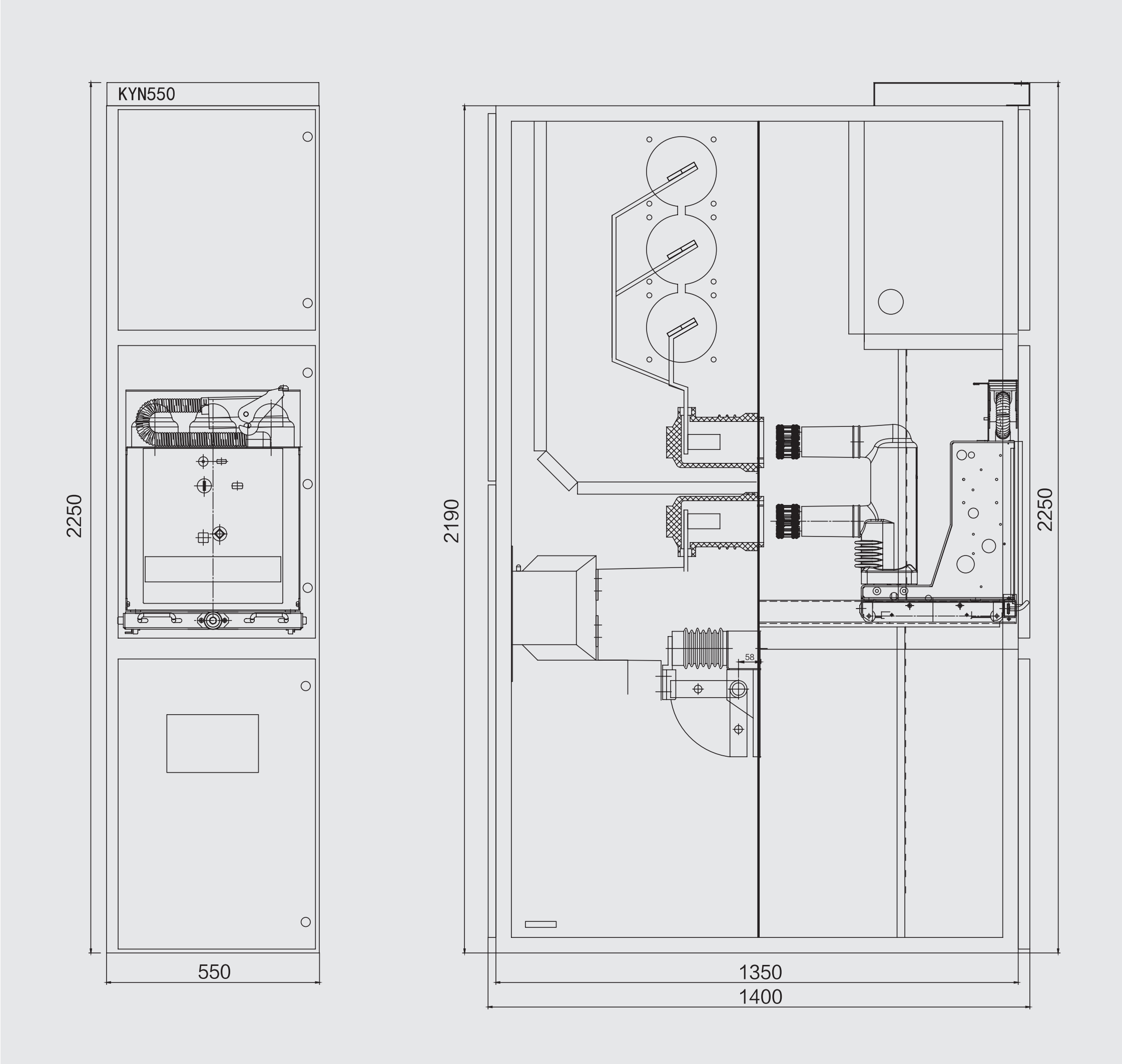
6. Overall and Installation Dimensions
7. Overall Dimensions and Weight
| Serial No. | Parameter (Unit) | Data |
|---|---|---|
| 1 | Width B(mm) | 550 |
| 2 | Height H(mm) | 2250 |
| 3 | Depth C(mm) | 1400(1550) |
| 4 | Weight (kg) (Approximate Value) | 400-700 |
8. Ordering Notes
When placing an order for the KYN550-12 switchgear, please provide the following information to ensure that the product meets the actual use requirements:
- Exact product model and specification
- Required rated parameters (voltage, current, short-circuit withstand capacity, etc.)
- Operating environmental conditions (if special requirements)
- Special technical requirements (such as customization, intelligent monitoring functions, etc.)
- Installation and dimension requirements (if different from standard)
Yongce Group Co., Ltd.
